ENTWURF
Von Außen her wirkt der Bunker wie ein hermetisch abgeriegelter Quader. Mittlerweile wurde das alte Walmdach abgetragen und zeigt den wuchtigen Dachstuhl aus Stahlbeton. Kleine in die Fassade einge- lassene Luftlöcher sind die einzigen Elemente, die sonst vollkommen geschlossene Fassade öffnen. Durch jeweils sechs Eingänge kann der Bunker betreten werden. Sein Grundriss ist symmetrisch gegliedert und lässt sich in zwei Achsen aufteilen.
KONZEPT
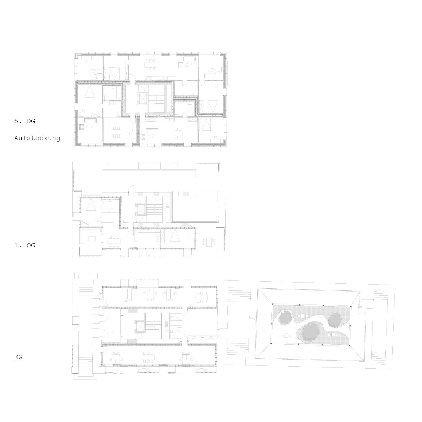
Basis des Entwurfs ist das Box in Box-Prinzip. Wir planen die Betonhülle des Bunkers aufzubrechen und diese als thermische Hülle zu benutzen. Da der Bunker in seiner Grundsubstanz sehr großzügige Raumhöhen aufweist, planen wir die zweite Decke ab beginn des Erdgeschosses zu entfernen. Die dadurch gewonnene neue Raumhöhe machen wir uns zu Nutzen. In die einzelnen Geschosse werden neue Holzeinbauten mittels Ständerwerk eingebaut. Die Kisten als solches werden gedämmt. Zur Nutzung des Bauwerkes werden Öffnungen in der Fassade hergestellt. Um ausreichend Raumhöhe gewährleisten zu können müssen mindestens drei Decken aufgebrochen werden. Je Geschoss werden zwei Wohneinheiten ausgewiesen. Diese sind um die 115 m² groß.
Konstruktion
Die Fassade wird durch ein Öffnungsraster aufgelockert, welches aus schmalen hochrechteckigen und quadratischen Öffnungen besteht. Die Öffnungen springen im Versatz und bringen so eine Dynamik in die Fassade. Die Öffnungen an den Ecken des Bunkers bilden nach hinten Loggien aus. Die Deckendurchbrüche in der Nordseite werden bildnach innen geöffnet, sodass sich ein Hof öffnet. Dieser wird durch ein Peristyl ergänzt, welches eine bepflanzte Mitte mit einem umlaufenden Gang aufweist. Ein dreigeschossiger Aufbau in Holzbauweise wird auf die obere 1,40 m starke Schutzdecke gestellt. Dieser übernimmt im seine Raumorganisation für den oberen Teil des Bunkers. Das zentrale Treppenhaus wird umgeplant und bis in den Holzaufbau weitergeführt. zusätzlich wird ein Aufzug eingeplant. Zum Flachdach hin, welches begrünt werden kann öffnet sich über dem Treppenhaus eine Laterne, welche den Tageslichteinfall ins Treppenhaus ermöglicht und den Zugang aufs Dach bietet.
Mit der Wiedernutzbarmachung des weitgehend leer stehenden Bunkers soll dieser einer neuen und sinnvollen Nutzung zugeführt werden. Einen Abriss halten wir aufgrund seiner Bausubstanz für unverhältnismäßig. Diese Thesen werden wir im folgenden Bericht umfangreich erläutern.









